萬事興龍|西安可持续办公空间正式启用

 这不仅仅是一个工作空间

也是我们对西安伙伴的礼物和承诺

希望他们的生活多一些色彩

从而能以更高的视角去服务客户

 

 

敏捷性+灵活性

AGILITY+ FLEXIBILITY

灵活开放的空间,焕发全新活力

轻松健康的办公氛围,体现品质的生活方式

 

和绚西安新办公室的规划之初我们选择挑战传统的工作场所设计,拒绝沉闷 ,打造一个灵动多元且充满活力的办公空间,满足年轻人喜好的同时吸纳多样化人才。

 

我们致力于提升员工的工作体验,空间规划能够根据员工需求的变化随时进行调整。

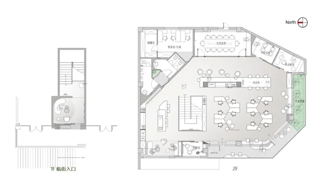
图片丨空间平面方案

 

为了让员工身心健康,该空间还设有专门运动区域,这些贴心的设计元素不仅满足了员工的运动需求,还培养了一种健康、融合和整体健康的文化。

图片

丨灵动岛

 

图片

丨大会议室

 

图片

丨大会议室

 

 

 

未来办公的可持续策略

FUTURE SUSTAINABLE OFFICE

绿色+健康=未来

运用科技化设备以及低碳环保的材料

通过智能化、数据化展现出健康绿色的工作环境

 

我们做到了对室内环境的温度、湿度、CO₂、PM2.5实时监测,通过虚拟屏幕呈现出来,将健康环境做到可视化。

图片

丨开放办公区

 

楼梯在垂直方向连接了一层的序厅与二层的办公空间,作为一个交通纽带它同时承载了公司企业文化展示的功能,以“时间轴”的形式竖向阵列排布在楼梯的一侧,叙写着和绚从过去到现在一路向上的历程,以及对未来无限的展望。我们为了更有效利用墙面的竖向空间,选用灵活多变的洞洞板来做背墙的饰面,留给未来更多的可能性。

图片

丨楼梯

 

多功能黑盒子轻盈地悬空在办公区与会议区,它同时集合了打印、开放讨论、灵活办公等需求,在室内构建出一个立体的垂直小岛,丰富办公区域之间的视觉趣味和互动。

图片

丨开放办公区

 

图片

丨多功能室

 

图片

丨办公区

 

粗犷的混凝土与极致的灯具产品碰撞出一个轻松、自由、灵活、艺术的场所,办公氛围侧面体现出品牌理念,比起对外精致包裹着的正襟危坐的商务办公姿态,我们更青睐于创造一个可以让我们的员工迸发灵感的自由之地。

图片

丨办公区

 

图片

丨小会议室

 

图片

丨过道

 

图片

丨序厅


设计从功能出发,但最终不应止于解决功能性的问题。在人们对美学评判更加包容的今天,办公场所不再囿于传统的单一办公模式,而是从使用者的需求出发不断尝试更加多样化的办公体验。

 

 

 

高效工作空间+健康生活方式

EFFICIENT+ HEALTHY

 

我们对美食咖啡空间重点打造,为员工提供咖啡机和各种优质咖啡。这里也是公司聚会的场所,员工也可在此享用悠闲午餐。


图片丨小会议室

图片

丨茶水区

 

“植物园”为员工提供了一个宁静的绿色世外桃源。这片宁静的绿洲可以为员工提供一个温暖、轻松的户外办公或下午茶空间,受到了员工的极大关注。

图片

丨休息区

 

和绚·西安办公室不仅仅是一个工作空间,它还体现了我们对健康组织文化的响应,以及对员工各方面福祉的真正关怀。通过有意识的设计和对员工身心健康的不懈关注,我们希望它真正体现 "健康文化的绿色工作空间"。

 

设计:上海和绚室内装饰有限公司——设计团队

施工:上海和绚室内装饰有限公司——西安团队

摄影:西安云合景从文化传播

 

图片

丨雪中的西安办公室

 

2023,本以为随着疫情的结束,经济会进入快速的恢复期,但是,世界并没有像我们的想象的一样运转,剧烈的变化正深刻地影响着我们的未来。面对如此不确定性的世界,我们应认真思考如何去面对未来的世界。个人如此,企业亦是如此。为了更好地迎接2024,我们的感受是应该精耕细作创未来。

 

时间总是无情地跟我们告别,2024我们会用精耕细作这种朴素踏实的作风去耕耘我们自己的人生,让时间过得更有意义。

 

让我们干杯,去敲响龙年的钟声!

 

图片